
Post-Grad Studio Project IV - Burning Man Sound Camp (Spring 2012)

Post-Grad Studio Project III - Outdoor Event Space - Marfa, TX (Fall 2011)

Post-Grad Studio Project II - South Harbor Elementary (Spring 2011)

Post-Grad Studio Project I - Otay Mesa Community Library (Fall 2010)






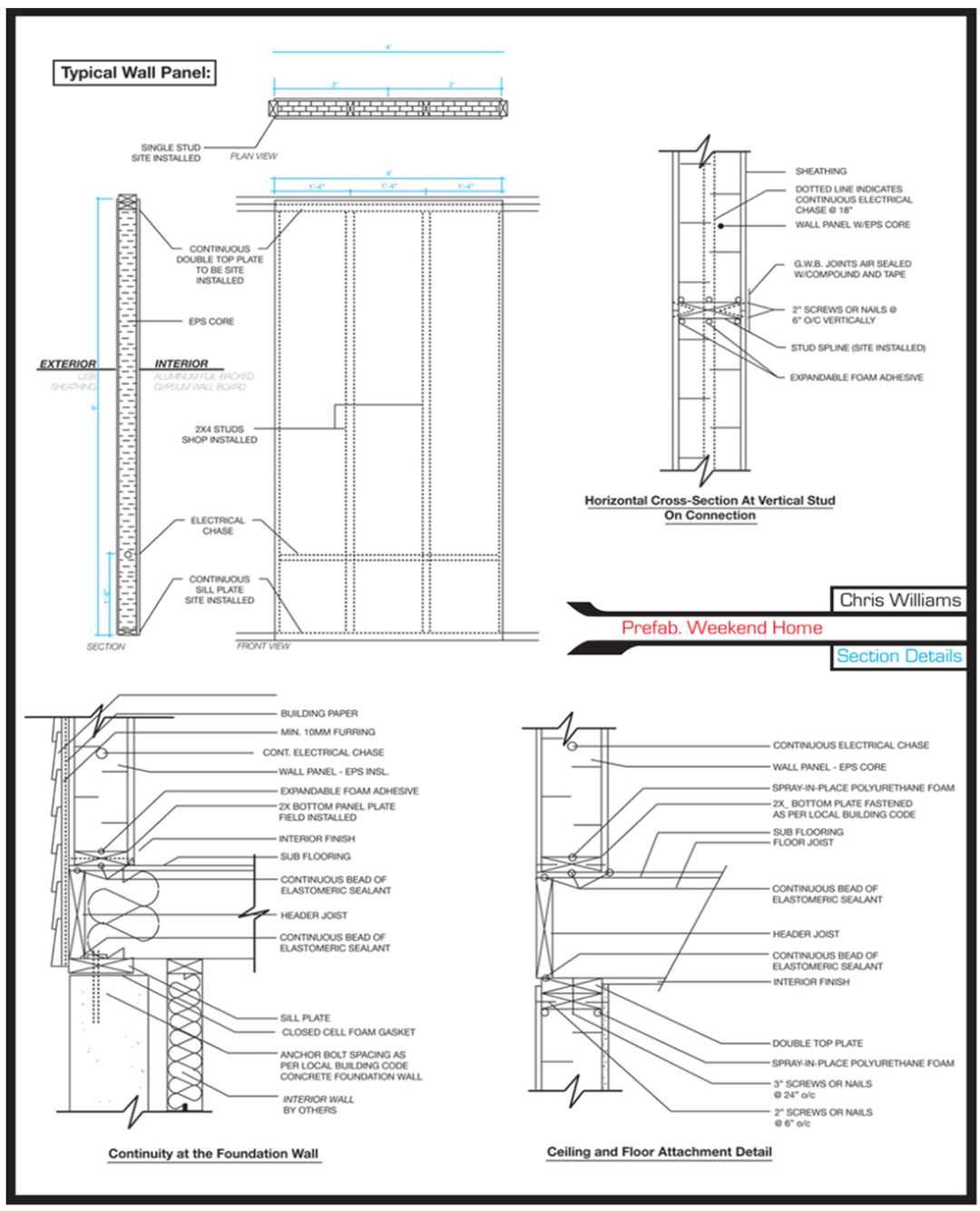
Prefab Weekend Home (Fall 2008)




